Mô tả
Hiện nay, container văn phòng 20 feet có toilet là giải pháp tối ưu cho doanh nghiệp cần không gian làm việc nhỏ gọn, tiết kiệm và tiện lợi. Với diện tích khoảng 15 m², loại container này tích hợp sẵn khu vực toilet, đầy đủ tiện nghi, dễ dàng di chuyển và lắp đặt nhanh chóng.
Sản phẩm đặc biệt phù hợp cho công trình xây dựng, dự án ngắn hạn, văn phòng di động, sự kiện ngoài trời hoặc các mô hình khởi nghiệp cần sự linh hoạt. Đây là lựa chọn thông minh, vừa đảm bảo tiện nghi, vừa tiết kiệm chi phí đầu tư.

Giới thiệu Container Văn Phòng 20 Feet Có Toilet
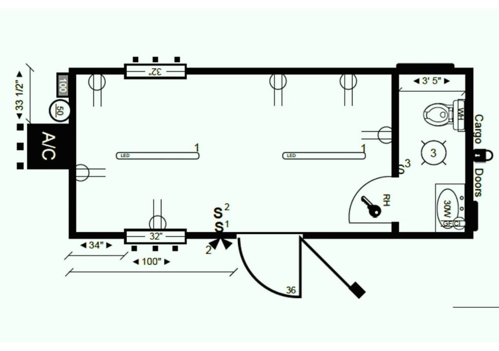
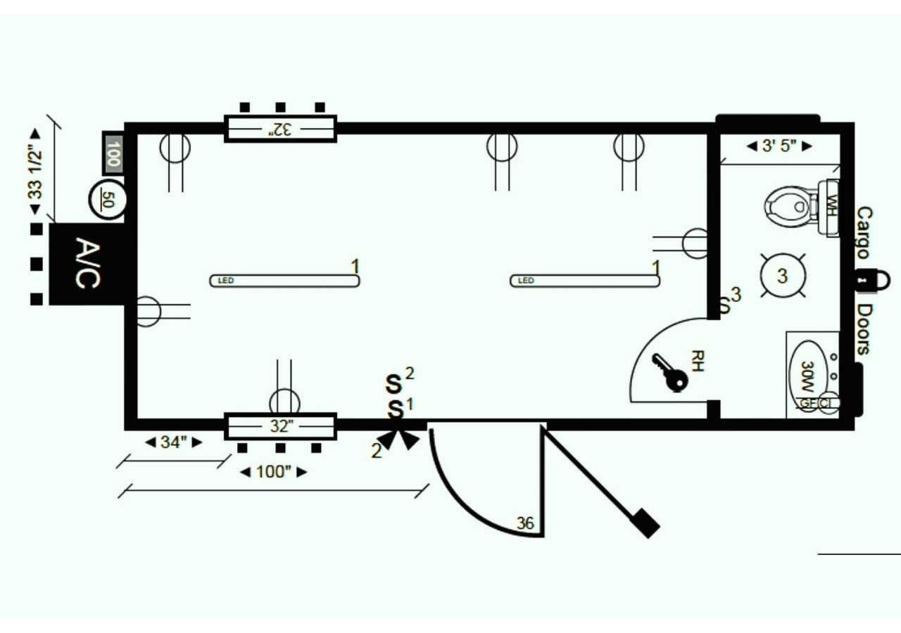
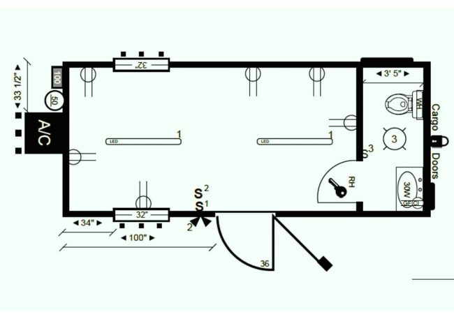
Container văn phòng 20 feet có toilet (cont văn phòng 20ft có toilet) là dòng container di động được hoán cải từ container kho 20 feet tiêu chuẩn, thiết kế thành không gian làm việc tiện nghi, gọn gàng và linh hoạt. Điểm nổi bật là toilet tích hợp riêng biệt với diện tích 1,2 x 2,42m, giúp nhân sự làm việc tại công trường hay dự án xa trung tâm có được sự thuận tiện tối đa.

Không gian bên trong container được bố trí:
- Khu làm việc rộng ~15 m², phù hợp cho 3–4 nhân sự.
- Toilet riêng gồm bồn cầu, lavabo, vòi sen, bồn nước 500L, cửa nhựa hoặc cửa pano sắt, vách ốp hợp kim nhôm nhựa Alumin, sàn gạch chống trượt, đảm bảo sạch sẽ – bền đẹp.
- Trang thiết bị văn phòng: cửa sổ, cửa đi, hệ thống điện, chiếu sáng, quạt hút, máy lạnh, trần – vách cách nhiệt và sàn hoàn thiện.
Nhờ sự kết hợp giữa chi phí hợp lý, tiện nghi vượt trội và tính ứng dụng cao, container văn phòng 20 feet có toilet đang là lựa chọn hàng đầu cho các công trình xây dựng, sự kiện, dự án ngắn hạn hoặc doanh nghiệp cần văn phòng tạm thời.
Cấu Tạo và Trang Bị Của Container Văn Phòng 20 Feet Có Toilet
Container văn phòng 20 feet toilet là giải pháp văn phòng di động linh hoạt, vừa cung cấp không gian làm việc tiện nghi cho 3–4 người, vừa tích hợp khu vệ sinh riêng biệt. Đây là lựa chọn tối ưu cho công trình xây dựng, dự án ngắn hạn, sự kiện, hoặc doanh nghiệp cần văn phòng tạm thời nhưng vẫn đảm bảo sự thoải mái và an toàn.

1. Ngoại Thất Hiện Đại và Chắc Chắn
- Hoán cải từ container kho 20 feet hoặc cắt từ container 40 feet, sơn màu xanh dương cơ bản (có thể tùy chỉnh màu theo thương hiệu hoặc phong thủy).
- Trang bị 1 cửa đi và 2 cửa sổ, cửa nguyên bản hàn kín để tăng độ an toàn.
- Kích thước tổng thể: Dài 6,058 m x Rộng 2,438 m x Cao 2,591 m, diện tích sử dụng khu văn phòng ~15 m².
2. Hệ Cửa Tiện Nghi và An Toàn
- Cửa đi: 1 cánh (1,6 m x 1,9 m), nửa dưới hàn kín, nửa trên kính cường lực, khung sắt bảo vệ, mái che chống mưa, khóa tay lượn chất lượng cao.
- Cửa sổ: 2 cửa lùa (0,6 m x 0,8 m), kính cường lực chống chói, khung sắt bảo vệ, mái che.
- Mép kính chét silicon chống thấm, đảm bảo độ bền sử dụng lâu dài.
3. Vách, Trần, Sàn Bền Bỉ
- Sàn: gỗ nguyên bản dày 28 mm, phủ simili 4 mm hoặc vật liệu tương đương, chịu lực tốt, dễ vệ sinh.
- Vách & trần: ốp tấm Cemboard dày 6 cm, chống nước, chống cháy, bên trong có lớp cách nhiệt EPS, bề mặt sơn trắng hoặc xanh nhạt.
- Thiết kế tối ưu giúp không gian làm việc hiện đại, thoải mái.
4. Khung Xương Chắc Chắn
- Khung gia cố bằng thép hộp 4×4 và 4×2 gắn sát thành container, chịu lực tốt.
- Giúp chống biến dạng, bảo vệ nội thất và thiết bị bên trong.
5. Hệ Thống Điện Tiện Nghi
- Dây Cadivi, dây nguồn 4 mm², điện AC 220V.
- Bảng điện gồm: CB chính, CB máy lạnh, công tắc đèn, công tắc quạt hút và nhiều ổ cắm.
- Dây điện đi trong ruột gà cách điện, nối đất chống rò điện, đảm bảo an toàn.
6. Toilet Tích Hợp Riêng Biệt
- Diện tích toilet: 1,2 x 2,42m, thiết kế khoa học, ngăn cách rõ với khu làm việc.
- Trang bị đầy đủ: 01 bồn cầu, 01 lavabo, 01 vòi sen, 01 đèn đơn, công tắc đèn, công tắc quạt hút, bồn nước nhựa 500L.
- Vách ốp hợp kim nhôm nhựa Alumin, sàn lát gạch chống trượt, cửa nhựa hoặc pano sắt (tùy vị trí bố trí).
- Đảm bảo sạch sẽ, an toàn, tiện nghi cho nhân sự làm việc tại công trường hoặc khu vực xa trung tâm.
7. Trang Bị Văn Phòng Đầy Đủ
- 01 máy lạnh 1HP – 1.5 HP, 01 quạt hút, đèn LED.
- Dễ dàng bố trí bàn ghế, tủ tài liệu và thiết bị văn phòng.
- Sẵn sàng sử dụng cho văn phòng công trường, dự án ngắn hạn hoặc sự kiện.
Container văn phòng 20 ft (container office 20 ft) không chỉ là không gian làm việc di động mà còn là giải pháp tối ưu cho các doanh nghiệp cần linh hoạt, tiết kiệm chi phí và nhanh chóng triển khai. Từ văn phòng công trường, thuê container văn phòng đến các dự án ngắn hạn, container 20 feet luôn đáp ứng tốt nhu cầu về tiện nghi, an toàn và thẩm mỹ.
Ưu Điểm Của Container Văn Phòng 20 Feet Có Toilet
Cont văn phòng 20 ft toilet đang dần là xu hướng lựa chọn hiện nay bởi những ưu điểm chính dưới đây:
-
Tiện nghi đầy đủ trong không gian nhỏ gọn
Diện tích ~15 m² bố trí hợp lý cho 3–4 người, kèm toilet 1,2 x 2,42 m trang bị lavabo, vòi sen, bồn cầu, bồn nước 500L… đảm bảo sự thoải mái và thuận tiện như văn phòng cố định.
-
Di động và dễ lắp đặt
Container văn phòng 20 feet có toilet dễ dàng vận chuyển bằng xe nâng hoặc xe cẩu, lắp đặt nhanh chóng chỉ trong 1–2 ngày, phù hợp công trình di động.
-
Tiết kiệm chi phí
Chi phí đầu tư hoặc thuê thấp hơn nhiều so với xây dựng văn phòng truyền thống, đặc biệt phù hợp với dự án ngắn hạn hoặc doanh nghiệp nhỏ.
-
An toàn và bền bỉ
Kết cấu thép chịu lực, chống mưa nắng, chống cháy, cách nhiệt tốt. Toilet lát gạch chống trượt, vách ốp nhôm nhựa Alumin giúp dễ vệ sinh và tăng độ bền.
-
Linh hoạt và đa năng
Phù hợp sử dụng làm văn phòng công trường, văn phòng dự án, văn phòng sự kiện. Có thể tùy chỉnh màu sắc, nội thất, logo theo yêu cầu doanh nghiệp.

Ứng Dụng Của Container Văn Phòng 20 Feet Có Toilet
Container văn phòng 20 feet có toilet hay còn gọi là cont văn phòng 20 toilet được ứng dụng đa dạng trong nhiều lĩnh vực nhờ thiết kế gọn gàng, tiện nghi và dễ di chuyển:
-
Văn phòng công trường
Phù hợp cho các công trình xây dựng, dự án hạ tầng – nơi cần văn phòng làm việc tạm thời đi kèm toilet tiện lợi cho nhân viên và kỹ sư.
-
Dự án ngắn hạn và startup
Là giải pháp tiết kiệm chi phí, nhanh chóng triển khai văn phòng làm việc mà không cần xây dựng cố định, vẫn đảm bảo sự riêng tư và tiện ích.
-
Sự kiện, hội chợ, triển lãm
Cont văn phòng 20 toilet có thể dùng làm phòng điều hành, quầy bán vé, hoặc khu quản lý kỹ thuật trong các sự kiện ngoài trời.
-
Khu vực xa trung tâm, vùng hạ tầng yếu
Ứng dụng hiệu quả trong khai thác khoáng sản, nông trại, trạm nghiên cứu – nơi khó triển khai văn phòng truyền thống nhưng vẫn cần không gian làm việc và toilet đi kèm.
-
Giải pháp linh hoạt cho doanh nghiệp
Có thể thuê hoặc mua tùy nhu cầu; dễ dàng di chuyển, tái sử dụng hoặc thanh lý, mang đến sự chủ động cho doanh nghiệp trong mọi giai đoạn hoạt động.
Quy Trình Lắp Đặt Container Văn Phòng 20 Feet Có Toilet
Việc lắp đặt container văn phòng 20 feet có toilet (hay cont văn phòng 20 toilet) được tiến hành nhanh chóng và gọn gàng, đảm bảo khách hàng có thể đưa vào sử dụng ngay sau khi bàn giao. Các bước cơ bản gồm:
-
Khảo sát vị trí lắp đặt
Kiểm tra mặt bằng, đo đạc diện tích, xác định vị trí đặt container để đảm bảo thuận tiện cho sử dụng và kết nối hạ tầng.
-
Chuẩn bị nền móng
San lấp mặt bằng, làm nền bê tông hoặc kê gạch, đà thép để giữ container chắc chắn, hạn chế lún hoặc nghiêng khi sử dụng lâu dài.
-
Vận chuyển và cẩu hạ container
Container được vận chuyển đến công trình bằng xe chuyên dụng và hạ xuống đúng vị trí bằng xe cẩu, đảm bảo an toàn tuyệt đối.
-
Kết nối hệ thống điện – nước
Kỹ thuật viên tiến hành đấu nối điện, nước cho khu vực làm việc và toilet, kiểm tra kỹ các đường dẫn để đảm bảo vận hành ổn định.
-
Hoàn thiện và bàn giao
Kiểm tra toàn bộ cửa, hệ thống chiếu sáng, máy lạnh, toilet, sau đó bàn giao cont văn phòng 20 toilet cho khách hàng đưa vào sử dụng.

Các Yếu Tố Ảnh Hưởng Đến Giá Container Văn Phòng
Các yếu tố chính ảnh hưởng đến báo giá bán và cho thuê container văn phòng
-
Kích thước và loại container
- Container 20 feet, 40 feet hay dạng ghép nhiều module sẽ có mức giá khác nhau.
- Container có toilet, phòng họp hay phòng nghỉ sẽ cao hơn so với container văn phòng tiêu chuẩn.
-
Tình trạng container
- Container mới 100% giá cao hơn nhưng đảm bảo độ bền lâu dài.
- Container cũ đã qua sử dụng, sau khi hoán cải lại sẽ có giá rẻ hơn, phù hợp công trình ngắn hạn.
-
Trang bị nội thất và tiện nghi
- Máy lạnh, hệ thống điện, nước, toilet, cửa sổ, trần cách nhiệt, sàn gỗ hoặc simili, vách panel EPS… càng hiện đại thì chi phí càng tăng.
- Tùy theo nhu cầu có thể chọn bản cơ bản (giá thấp) hoặc bản cao cấp (giá cao).
-
Chất liệu và thiết kế
- Vật liệu cách nhiệt, chống cháy, chống ồn, màu sơn theo thương hiệu, thiết kế nội thất riêng… đều ảnh hưởng đến giá thành.
-
Chi phí vận chuyển và lắp đặt
- Khoảng cách từ nơi cung cấp đến công trình, chi phí xe cẩu, vận chuyển đường dài… sẽ làm giá tăng thêm.
-
Hình thức sử dụng: Mua hay Thuê
- Mua: giá cao hơn, phù hợp nhu cầu lâu dài.
- Thuê: giá rẻ hơn, tính theo tháng hoặc dự án, thường chọn cho công trình ngắn hạn.
Bán & Cho Thuê Container Văn Phòng Giá Rẻ, Nhanh Chóng
Sao Biển Container là đơn vị chuyên cung cấp container văn phòng, container kho, container vệ sinh,.. uy tín & giá rẻ. Với nhiều năm kinh nghiệm trong lĩnh vực hoán cải và cho thuê container, chúng tôi mang đến cho khách hàng những sản phẩm chất lượng, bền bỉ, đầy đủ tiện nghi với mức giá cạnh tranh nhất.
Ưu điểm khi bạn chọn Sao Biển Container:
- Giá rẻ – Linh hoạt: Cung cấp dịch vụ bán và cho thuê container với nhiều lựa chọn phù hợp ngân sách.
- Nhanh chóng – Tiện lợi: Đội ngũ thi công và vận chuyển chuyên nghiệp, lắp đặt container tận nơi chỉ trong thời gian ngắn.
- Đa dạng sản phẩm: Container văn phòng 10 feet, 20 feet, 40 feet, container có toilet,..đáp ứng mọi nhu cầu từ công trình, dự án đến sự kiện.
- Chất lượng đảm bảo: Container chắc chắn, cách nhiệt, chống ồn, chống thấm, mang lại không gian làm việc thoải mái, an toàn.
Để được tư vấn và báo giá chính xác nhất, bạn vui lòng liên hệ:
Hotline 0903 449 086
Ngoài ra, còn cung cấp rất nhiều dòng Container văn phòng khác. Quý khách hàng có thể tham khảo thêm tại đây.
Công Ty TNHH Container Sao Biển
Website: www.saobiencontainer.com
Hotline: 0903 449 086
Website: saobiencontainer.com
Văn Phòng: TĐS 1224, TBĐ 39, Khu Phố Tân Thắng, Phường Tân Bình, Tp Dĩ An, Bình Dương
Depot: Cao Tốc Mỹ Phước – Tân Vạn, Kp 4, P. An Phú, Tp. Thuận An, Bình Dương











